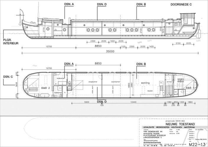
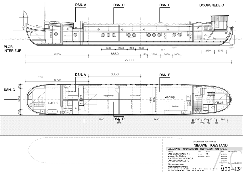
Een voorbeeld van de aanvraagtekeningen voor de legalisatie van alle woonschepen in de Oude Houthaven de aan de Haparandasteiger.
Adres
Geuzenstraat 22hs
1056 KD Amsterdam
tel. 020-616 86 68
mob. 06-255 24 240
ArchitectenCentrale
De ArchitectenCentrale is zich zeer bewust van de klimaatcrisis. Elk bouwverlangen heeft bij ons circulaire uitgangspunten. Het streven naar integratie – synergie in ontwerp en uitvoering- is de basis voor werkelijke schoonheid. Als architectuur de hoogste vorm van synergie bereikt, wordt zij kosmische, sacrale architectuur. Het oprecht streven naar duurzaamheid is een sacrale intentie. Alles kan een kathedraal zijn.
De ArchitectenCentrale is in 1999 opgericht door Willem van Seumeren, architect AvB.




